Listing Tools

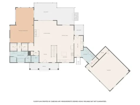
Crafted by Fern Creek Builders, this brand-new 5-bedroom, 5.5-bathroom home combines modern luxury with timeless mountain charm. Nestled in the prestigious gated community of Chinquapin, this residence is designed for those who seek elegance, comfort, and adventure. The heart of the home is the upgraded chef's kitchen, complete with top-of-the-line appliances, a butler's pantry, and expansive counter space-perfect for everyday living or entertaining in style. The open floor plan seamlessly connects the kitchen, dining, and living areas, creating a warm and inviting atmosphere. The primary suite is a true retreat, featuring a cozy sitting room with long-range mountain views and direct deck access. Two walk-in closets and a spa-like ensuite bathroom offer a private escape. Guests will love the separate apartment above the garage, which includes its own full bath for comfort and privacy. On the lower level, three additional bedrooms each with ensuite baths, provide ample space for family or visitors. Thoughtful details like a bar area/pantry, spacious laundry room, and a double garage ensure convenience at every turn. Set on a gently rolling lot with a paved meandering driveway, the home is crowned by a cedar shake roof and surrounded by breathtaking natural beauty. From the expansive decks, soak in the sweeping mountain views that define the Plateau lifestyle. Living in Chinquapin means more than just a beautiful home-it's a way of life. Explore miles of trails designed for hiking, biking, and UTVs; fish for native trout in pristine streams; enjoy pickleball, a driving range, and lake. With over 2,000 acres of community space-700 of which are permanently conserved with the North American Land Trust-you'll find endless opportunities for adventure, relaxation, and connection with nature. Don't miss your chance to own a stunning mountain retreat in one of the Plateau's most sought-after communities.

Property Details of 906 New Settlers Way

Property Details

Interior Features

Community

Map Location

Driving Directions

Listed by Sarah Strawn of Keller Williams Great Smokies

 "Based on information submitted to HCBOR as of November 11, 2025 3:43 PM EST. All data is deemed reliable but is not guaranteed accurate by the MLS. All information should be independently reviewed and verified for accuracy. IDX information is provided exclusively for consumers’ personal, noncommercial use and may not be used for any purpose other than to identify prospective properties consumers may be interested in purchasing."

Hi there! How can we help you?

Contact us using the form below or give us a call.

Send Us A Message:

I agree to receive marketing and customer service calls and text messages from Katie Nicholson. To opt out, you can reply 'stop' at any time or click the unsubscribe link in the emails. Consent is not a condition of purchase. Msg/data rates may apply. Msg frequency varies. Privacy Policy.

Do not fill in this field:

This site is protected by reCAPTCHA and the Google Privacy Policy and Terms of Service apply.

Hi there! How can we help you?

Contact us using the form below or give us a call.

Send Us A Message:

Do not fill in this field:

This site is protected by reCAPTCHA and the Google Privacy Policy and Terms of Service apply.

Hi there! How can we help you?

Contact us using the form below or give us a call.

Send Us A Message:

Do not fill in this field:

This site is protected by reCAPTCHA and the Google Privacy Policy and Terms of Service apply.

Do not fill in this field:

This site is protected by reCAPTCHA and the Google Privacy Policy and Terms of Service apply.

Do not fill in this field:

This site is protected by reCAPTCHA and the Google Privacy Policy and Terms of Service apply.

Do not fill in this field:

This site is protected by reCAPTCHA and the Google Privacy Policy and Terms of Service apply.

$

Do not fill in this field:

This site is protected by reCAPTCHA and the Google Privacy Policy and Terms of Service apply.